Stilvolle 3-Zimmer-Altbauwohnung mit offener Galerie –Tolle Wohnatmosphäre in ruhiger Lage
58285 Gevelsberg, Etagenwohnung zur Miete
Kontaktdaten
-
NameHerr Dennis Heidemann
-
FirmaRahn Immobilien GmbH & Co. KG
-
AnschriftMittelstr. 1
58285 Gevelsberg -
E-Mail
-
Telefon
-
Mobil
Objektdaten
-
Objekt IDM 2388_3
-
ObjekttypenEtagenwohnung, Wohnung
-
Adresse58285 Gevelsberg
-
Etagenanzahl im Haus3
-
Wohnfläche ca.76 m²
-
Vermietbare Fläche ca.76 m²
-
Zimmer3
-
Schlafzimmer2
-
Badezimmer1
-
Separate WC1
-
BefeuerungGas, Etagenheizung
-
Baujahr2013
-
Zustandneuwertig
-
Verfügbar absofort
-
Nebenkosten350 EUR
-
Kaution1.500 EUR
-
Kaltmiete629 EUR
-
Gesamtbelastung brutto979,00 EUR
-
Betriebskosten (netto)350 EUR
Ausstattung / Merkmale
- ✓ Kabel-/Sat-TV
- ✓ Separates WC
Energieausweis
-
EnergieausweistypVerbrauchsausweis
-
Gültig bis10.03.2026
-
GebäudeartWohngebäude
-
Baujahr lt. Energieausweis2013
-
PrimärenergieträgerGas
-
Endenergieverbrauch131,10 kWh/(m²·a)
-
EnergieeffizienzklasseE
Objektbeschreibung
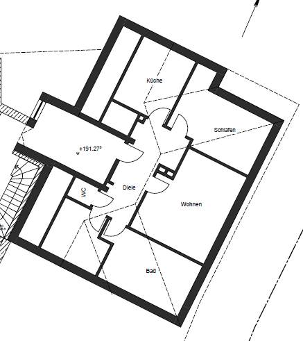
Diese ca. 76 m² große, lichtdurchflutete 3-Zimmer-Wohnung überzeugt mit ihrem besonderen Grundriss und einem sehr gepflegten Zustand. Sie befindet sich in einem ruhigen 3-Familienhaus und eignet sich ideal für Paare, kleine Familien oder anspruchsvolle Singles.
Ein Highlight der Wohnung ist die offene Galerie, die dem Wohnraum ein großzügiges, modernes Ambiente verleiht und vielfältige Nutzungsmöglichkeiten bietet – ob als Arbeitsbereich, Leseecke oder Rückzugsort. Ein Gäste-WC steht ebenfalls zur Verfügung.
Die Räume sind hell und freundlich gestaltet, welches eine angenehme Wohnatmosphäre schafft. Die vorhandene Einbauküche kann auf Wunsch vom derzeitigen Mieter übernommen werden.
Lage
Die Südstraße 24 in 58285 Gevelsberg befindet sich in einer ruhigen und dennoch zentral gelegenen Wohngegend. Die Innenstadt von Gevelsberg ist fußläufig erreichbar und bietet eine Vielzahl von Einkaufsmöglichkeiten, Cafés und Restaurants. Die nahegelegene Mittelstraße ist eine verkehrsberuhigte Einkaufszone mit freundlichen Straßencafés und hochwertigen Geschäften, die alle Möglichkeiten für den täglichen Bedarf bietet .
Die Anbindung an den öffentlichen Nahverkehr ist hervorragend: Die Bushaltestelle "Gevelsberg Schützenheim" ist nur etwa 4 Gehminuten entfernt, und der Gevelsberg Hauptbahnhof ist in ca. 13 Minuten zu Fuß erreichbar . Zudem sind die Autobahnen A1, A43, A45 und A46 in wenigen Fahrminuten erreichbar, was eine schnelle Verbindung in die umliegenden Städte des Ruhrgebiets und darüber hinaus ermöglicht .
Für Freizeitaktivitäten bietet Gevelsberg zahlreiche Möglichkeiten: Das Freizeitbad "Schwimm-In" mit seinen Superrutschen, ein Golfplatz sowie umfangreiche Waldflächen in der Umgebung sorgen für einen hohen Erholungswert .
Insgesamt zeichnet sich die Lage durch eine gelungene Kombination aus ruhigem Wohnen und zentraler Erreichbarkeit aus, was sie besonders attraktiv für Paare, kleine Familien und Berufspendler macht.
Die dargestellte Position der Immobilie ist nur eine ungefähre Angabe.









