Großzügige 2-Zimmerwohnung mit Balkon und Stellplatz in TOP-Lage
58119 Hagen, Etagenwohnung zum Kauf
Referenz
Dieses Objekt wurde bereits erfolgreich vermittelt.
Objektbeschreibung
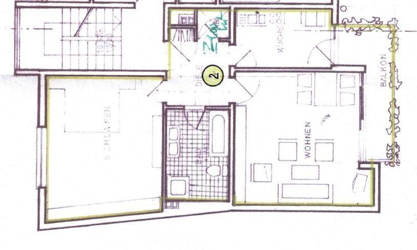
Mit ca. 70 m² bietet Ihnen diese lichtdurchflutete 2-Zimmer Eigentumswohnung den perfekten Start, egal ob Sie Kapitalanleger oder Selbstnutzer sind. Die ETW liegt in der 1. Etage eines im Jahre 1973 erbauten Sieben-Parteien-Mehrfamilienhauses in Hagen Hohenlimburg.
Von der geräumigen Diele gelangen Sie in die umliegenden Zimmer: die eingerichtete Küche, von der Sie am Morgen direkt mit Ihrem Kaffee den zum Süden ausgerichteten Balkon betreten können, dem lichtdurchflutetem Wohnzimmer mit großer Fensterfront und Hebe-Schiebe-Tür und ebenfalls direktem Zugang zum Balkon, dem Badezimmer mit Dusche und Wanne und dem großzügigen nach hinten liegenden Schlafzimmer.
Zur Wohnung gehört ein Stellplatz direkt vor der Hauseingangstür.
Lage
Die Immobilie befindet sich im schönen Stadtteil Hohenlimburg der Stadt Hagen. Kindergärten, Schulen, Supermärkte, verschiedene Ärzte, Restaurants und Cafés sind fußläufig in wenigen Minuten zu erreichen. Verschiedene Spazierwege, Tankstellen und weitere Einkaufsmöglichkeiten befinden sich nicht weit entfernt. Die Hagener Innenstadt ist in 10 Fahrminuten zu erreichen und bietet alle Geschäfte des täglichen Bedarfs.
Hervorzuheben ist auch die Nähe zu den Autobahnen A45 und A46. Dortmund ist in ca. 30 Autominuten zu erreichen. Größere Städte wie Düsseldorf und Köln sind in ca. 60 Fahrminuten zu erreichen.
Die Flughäfen Dortmund und Düsseldorf erreichen Sie nach jeweils einer halben Stunde bzw. einer Stunde Fahrt. Der Flughafen Köln/Bonn liegt rund eine gute Stunde entfernt.
Die dargestellte Position der Immobilie ist nur eine ungefähre Angabe.










