Wohlfühloase mit TOP Ausstattung in Schwelm! EFH mit Einliegerwohnung in purem Luxus!
58332 Schwelm, Einfamilienhaus zum Kauf
Referenz
Dieses Objekt wurde bereits erfolgreich vermittelt.
Objektbeschreibung
Beschreibung
Diese erst 2016 auf höchstem Niveau kernsanierte ca. 340 m² große Villa punktet mit allerbester Lage, luxuriöser Ausstattung, lichtdurchfluteten Räumen und einer Großzügigkeit, die ihresgleichen sucht.
Einen ersten Eindruck gewinnen Sie schon beim Betreten: Das sehr geschmackvolle Entrée gewährt Ihnen bereits einen Blick auf die fast 80 m² große, sonnenverwöhnte Terrasse, ebenso wie in den offenen Wohn-/Essbereich. In der mit vielen technischen Details versehenen höchstqualitativen Einbauküche können Sie nach Herzenslust Ihre Gäste verwöhnen, durch die offene Gestaltung zum Essbereich und Wohnzimmer (mit neuester Technologie klimatisiert) hin sind Sie immer „mittendrin“. Die großen Hebe-/Schiebeelemente ermöglichen Ihnen eine nahtlose Verlängerung des Wohnbereichs nach draußen auf die Terrasse, ein Treppenabgang bietet hier noch einen zusätzlichen Zugang zum gepflegten, durch üppiges Grün sichtgeschützten Garten.
Über einen separaten Flur gelangen Sie vom Entree in die Schlafräumlichkeiten (ebenfalls mit neuester Technologie klimatisiert), die daher hervorragend vom Wohnbereich abgeschirmt sind und Ihnen die nötige Ruhe verschaffen werden: Hier finden Sie zwei Kinderzimmer, ein großzügiges Masterbad mit Wanne und Dusche, sowie das Elternschlafzimmer. Von letzterem aus erreichen Sie über eine Treppe in das auf Gartenebene befindliche, mit hochwertigen Einbauschränken ausgestattete Ankleidezimmer mit direktem Ausgang in den Garten.
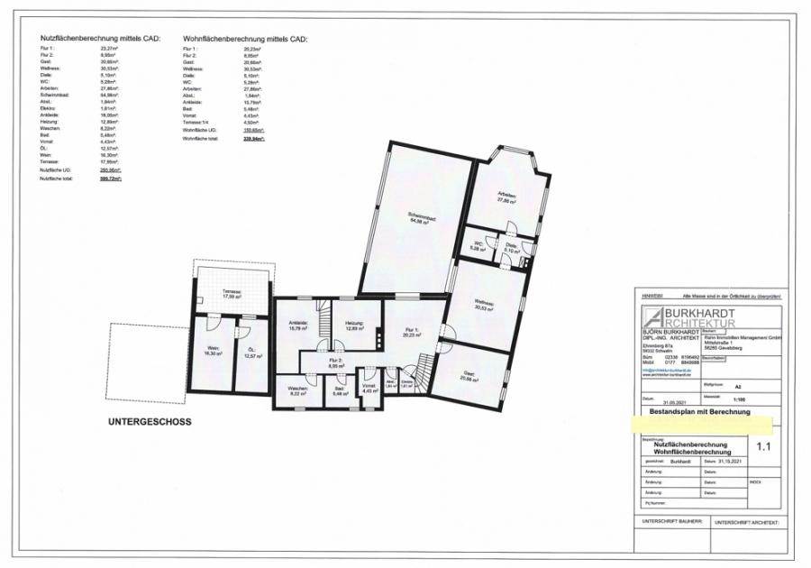
Diese untere Etage – übrigens auch über eine Treppe vom Entrée aus zu erreichen, ist quasi Ihrem Freizeitvergnügen gewidmet – mit Kicker-Raum, moderner Bar, Wellnessbereich mit Sauna, Dusche und Fitness, Gäste-WC sowie dem großen Hallenbad (Becken 4mx8 m mit Gegenstromanlage) mit grandiosem Blick in den Garten bleiben hier keine Wünsche offen! Weiterhin finden Sie hier noch Abstellräume und einen Hauswirtschaftsraum.
Das Untergeschoß bietet on Top noch ein Einlieger-Appartement mit rd. 37 m² Wohnfläche inkl. separatem Eingang und großzügigem Duschbad. Hier ist ein Büro genauso denkbar wie die Unterbringung einer Pflegekraft oder auch einfach noch mehr Raum für die Familie oder Gäste.
Noch einmal zurück zum Pool: Durch die über die ganze Fläche eingebauten, bodentiefen Fensterflächen gelangen Sie ebenfalls in den Garten, der mit einem weiteren Highlight aufwartet: Der überdachten, mit einem Kamin ausgestatteten Lounge – Hier können Sie oder auch Ihre Gäste schlechtem Wetter sehr gemütlich trotzen.
Last but not least machen die große Doppelgarage und 2 Fertiggaragen sowie die davor liegenden Stellplätze diese Immobilie komplett.
Unser Fazit: Eine mit allem erdenklichen Komfort ausgestattete Villa, die höchsten Ansprüchen genügt!
Ausstattung
Das Objekt besteht aus einem freistehenden Einfamilienhaus mit Einliegerwohnung, seitlich angebauter Doppelgarage, sowie zwei Fertiggaragen mit davor liegenden Stellplätzen. Zum Garten hin ist ein Hallenbad mit direktem Zugang zum Garten vorhanden. Das Objekt kann in drei Bauabschnitten unterteilt werden – ursprünglicher Bau aus 1968, Erweiterungsbau aus den 90iger Jahren und Kernsanierung 2016. Das Hallenbad wird über die gesamte Fläche als Terrasse genutzt.
Das Objekt besteht aus zwei Vollgeschossen, das Untergeschoss in den Hang gebaut. Im Untergeschoss sind sowohl Kellerübliche Technik- und Abstellflächen, sowie Wohnflächen und u.a. die Einliegerwohnung.
Im Obergeschoss befinden sich Küche, Wohn-, Ess-, sowie die Kinderzimmer , der Elternschlafraum und Masterbad. Die vertikale Erschließung erfolgt über eine großzügige Treppe im Entrée. Zusätzlich wurde im Elternschlafzimmer eine Treppe in das darunterliegende Ankleidezimmer erstellt.
Das Objekt wurde 2015/2016 kernsaniert, das Hallenbad wurde überwiegend neu aufgebaut. Die Sanierung erfolgte in weit überdurchschnittlicher Qualität.
Dachgeschoss: Dachgeschoss nicht ausgebaut
Erd-/Obergeschosse: Erd-, Obergeschoss
Kellergeschoss: nicht unterkellert
Bauweise Massivbauweise
Baujahr: 1968
Kernsanierung. 2016
Zustand: exzellent
Ausstattungsstufe: sehr gehoben
Gebäudemaß: 610 m² BGF
Bauweise / tragende Wände: Massivbauweise
Dachaufbau: Walmdach, feste Eindeckung
Fassade. verputzt, gestrichen
Fenster / Türen: Wärmeschutzglas
Bodenbeläge: hochwertige Parkettböden bzw. Fliesen
Wandbeläge: geputzt, gestrichen
Heizung: Ölheizung mit Solarthermieunterstützung über fünf Kollektoren
Klimatisierung: Wohnzimmer, Esszimmer, Küche, alle Schlafräume mit modernster Technologie klimatisiert
Sanitärinstallation: zeitgemäße, sehr hochwertige Ausstattung im Rahmen der Kernsanierung
Elektroinstallation: zeitgemäße, luxuriöse Ausstattung im Rahmen der Kernsanierung (smart home)
Sonstiges: alarmgesichertes Objekt mit Aufschaltung zum Wach-/Schließservice und zur Polizei
Außenanlagen: Neuanlage im Rahmen der Kernsanierung
Ausstattungsqualität. sehr hochwertig / Überdurchschnittlich
Unterhaltungszustand: Der Unterhaltungszustand ist auf dem Niveau eines Neubaus, somit entsprechend sehr gut.
Lage
Zufahrt zum Grundstück:
Das Grundstück ist über eine asphaltierte Privatstraße erreichbar. Der Zugang ist durch ein Wegerecht, eingetragen im Grundbuch von Schwelm, dinglich gesichert.
Makrolage:
Das Objekt liegt in der Kreisstadt Schwelm im südlichen Ennepe-Ruhr-Kreis NRW.
Eckdaten der Stadt Schwelm:
Einwohner: ca. 30.000
Fläche: 20,5km²
Einwohnerdichte: rund 1.393 Einwohner / km²
Flächennutzung: Rund 42% Siedlungs- und Verkehrsfläche (darunter vorwiegend Gebäude-, Frei-, und Betriebsfläche (rund 30%) und Verkehrsfläche (rund 10%)
Rund 58% Freifläche außerhalb der Siedlungs- und Verkehrsfläche (darunter vorwiegend Landwirtschaftsfläche (rund 33%) und Waldfläche (rund 24%)
Schwelm ist baulich überwiegend städtisch strukturiert. Im Bereich Linderhausen und Teilen des Winterberges ist vorwiegend offene Bauweise mit Wohngebäuden vorhanden. Die Stadt verfügt über alle notwendigen Einkaufsmöglichkeiten, es sind alle Schulformen und Kindergärten am Ort vorhanden. Kultur, Sport und Vereinsleben gehören zu den Angeboten der Stadt. Die Stadt ist eingerahmt von einem Grüngürtel.
Überregionale Verkehrsanbindungen
Durch das Autobahnkreuz Wuppertal - Nord ist die Stadt sehr verkehrsgünstig an den Autobahnen A1, A43 und A46 gelegen. Von hier aus können die Ballungsräume Köln, Düsseldorf, Wuppertal und das östliche Ruhrgebiet schnell erreicht werden. Die Bundesstraße 483 durchquert die Stadt in nord-süd Richtung. der ÖPNV ist durch ein enges Busnetz und die Bahnanbindung an die ICE-Hauptstrecke mit S-Bahn und RE-Angebot sowie überregionaler Anbindung in Wuppertal und Hagen gut ausgebaut.
Aufgrund der vorstehenden Ausführungen wird die Makrolage als sehr gut eingestuft.
Mikrolage
Das Objekt ist auf der Südhöhe von Schwelm zur Stadtgrenze nach Wuppertal gelegen. In südlicher Richtung der Grüngürtel mit Wäldern und landwirtschaftlich genutzten Flächen als Naherholungsgebiet. Das Umfeld ist durch wohnwirtschaftliche. I-III geschossige Bebauung - überwiegend mit Ein- und Zweifamilienhäusern geprägt. Öffentliche Verkehrsmittel sind gut zu erreichen (Bushaltestelle naheliegend, Bahnhof ca. 2 km).
Alle Geschäfte des täglichen Bedarfs und alle Einrichtungen, wie Kindergärten, Schulen und Ärzte sind in noch fußläufig oder in wenigen Autominuten erreichbar.
Aufgrund der vorstehenden Ausführungen wird die Mikrolage als sehr gut eingestuft.
Die dargestellte Position der Immobilie ist nur eine ungefähre Angabe.






























